Японски дом на културата и взаимовръзката между България и Япония
Нaшият екип предлага сградата на БНБ намираща се в гр.Пловдив да бъде развивана и разпознавана като Център „Аригато” – Японски дом на културата и взаимовръзката между Япония и България.
Център за популяризиране и обмен на знания за изкуствата, културата, науката, икономиката и начина на живот и дългосрочно развиване на българо-японските отношения.
Основният принцип, от който се ръководи Идейният екип в Концепцията е да се привнесе японският опит в неговата пъстрота на традиционни и авангардни културни, художествени, научни, творчески, икономически знания и достижения и на тази основа да се укрепи съвременното и цивилизационно познание в българското общество за Япония.
Основната цел на Център „Аригато” е свързана с изграждането му като единен културен кампус, реновиран съобразно японските стандарти за културен обект, обект за артистични изяви на японските изкуства, за изложби, място за получаване на нови знания, място за презентации и трансфер на японско ноу-хау в различни сфери на живот – основно чрез съвременните дигитални технологии и изкуствен интелект. Центърът се планира да функционира и като място за срещи и запознанства, за изложби, за дискусии на тема Япония.
В дългосрочен план се предвижда да се постигне по-високо ниво на опознаване на японската култура от сегашното и бъдещите поколения, съобразно съвременните развития на културните, научните и художествените екосистеми и тяхното благоприятно трансформиране в българската реалност.
Планира се Център „Аригато” да бъде с интегрирано съвместно управление с подкрепата на Община Пловдив, външни инвеститори и подкрепа от Япония.


ОСНОВНА ЦЕЛ
Основната стратегическа цел на Концепцията е чрез изграждането на този Център да се осигури подкрепа, представяне и популяризиране „от едно място” на знание и информация с помощта на дигитални технологии относно японските традиции, изкуства, икономика и добрите образователни и делови практики в полза и подкрепа на българското общество и укрепване на българо-японските отношения.

изглед ул.Райко Даскалов

изглед ул.Райко Даскалов

изглед ул.Петко Каравелов

изглед покрив – градина

изглед площад и покрив – градина

изглед покрив – водно огледало и зала за съзерцание

ЕНЕРГОЕФЕКТИВНОСТ И ЕКОЛОГИЧНОСТ
Материалите използвани за ремонта ще отговарят на екологичните стандарти.
При новопоявилите се плосък покрив изолация от 30см покриваща пасивните стандарти, подовете между етажите също ще бъдат изолирани, а външните стени изолирани от вътре за да не се усложнява и оскъпява ремонта на фасадите.
За да се постигне добра енергоефективност дограмата е възможно да бъде заменена за намаляване на топлинните загуби.
Фасадите ще бъдат реставрирани и боядисани с варова мазилка с пигмент.
Сградата разполага с централно парно, което може да бъде използвано, към системата ще се добави вентилация или рекулперация, която ще подсигурява добрата климатизация на сградата и снабдява със свеж въздух за да не се налага отваряне на прозорци и загуба на енергия.

изглед салон/ресторант 1

изглед салон/ресторант 2

изглед салон/ресторант 3
Разпределенията предложени от нас са без конструктивни намеси по сградата, приспособили сме функцията спрямо даденостите. Нямаме местене на стени и променяне на пространства – единствено санитарните зони и асансьора са приспособени за хора с увреждания.
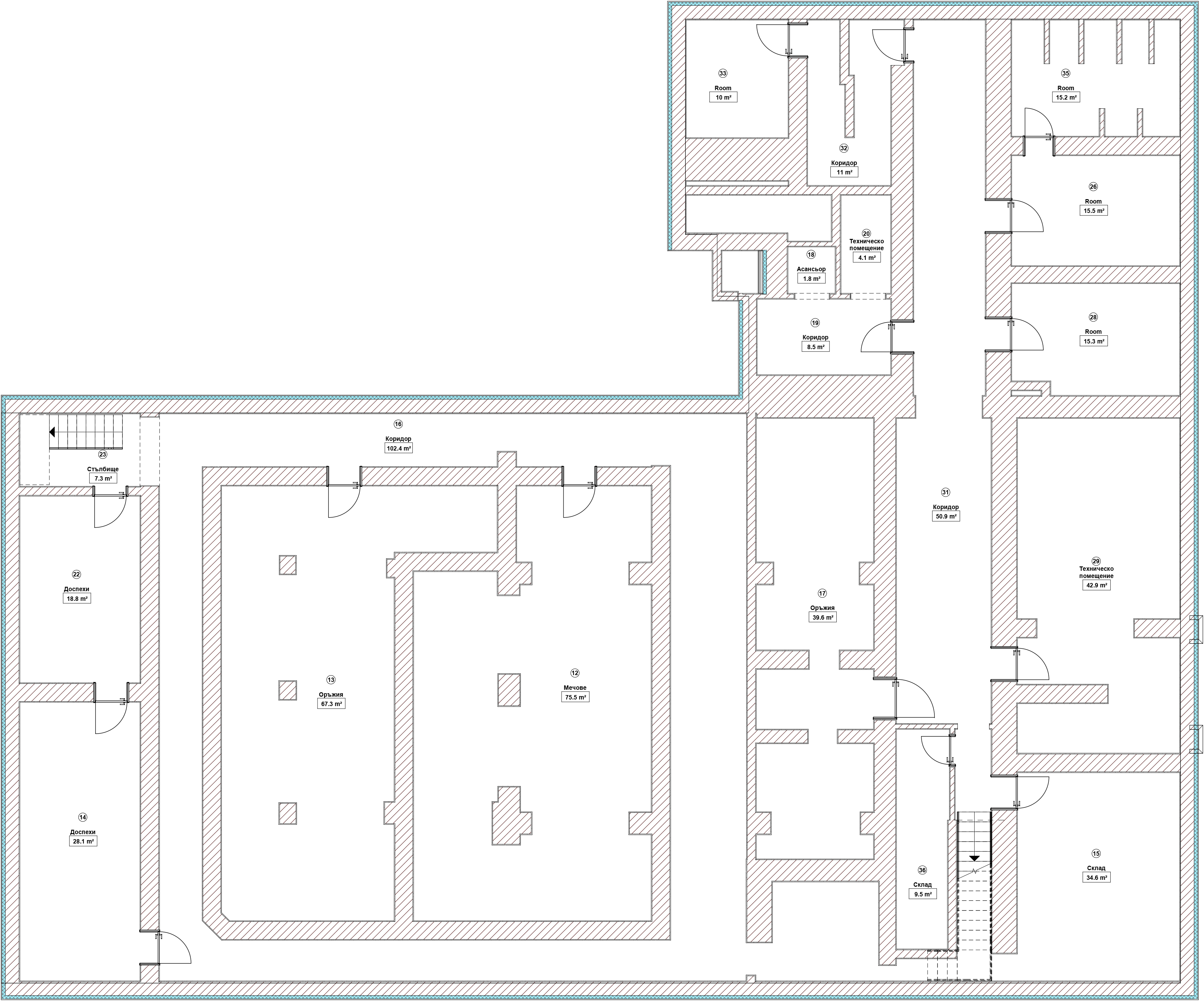
Подземното ниво К-2.70 съдържа зали за оръжия и доспехи, технически и складови помещения
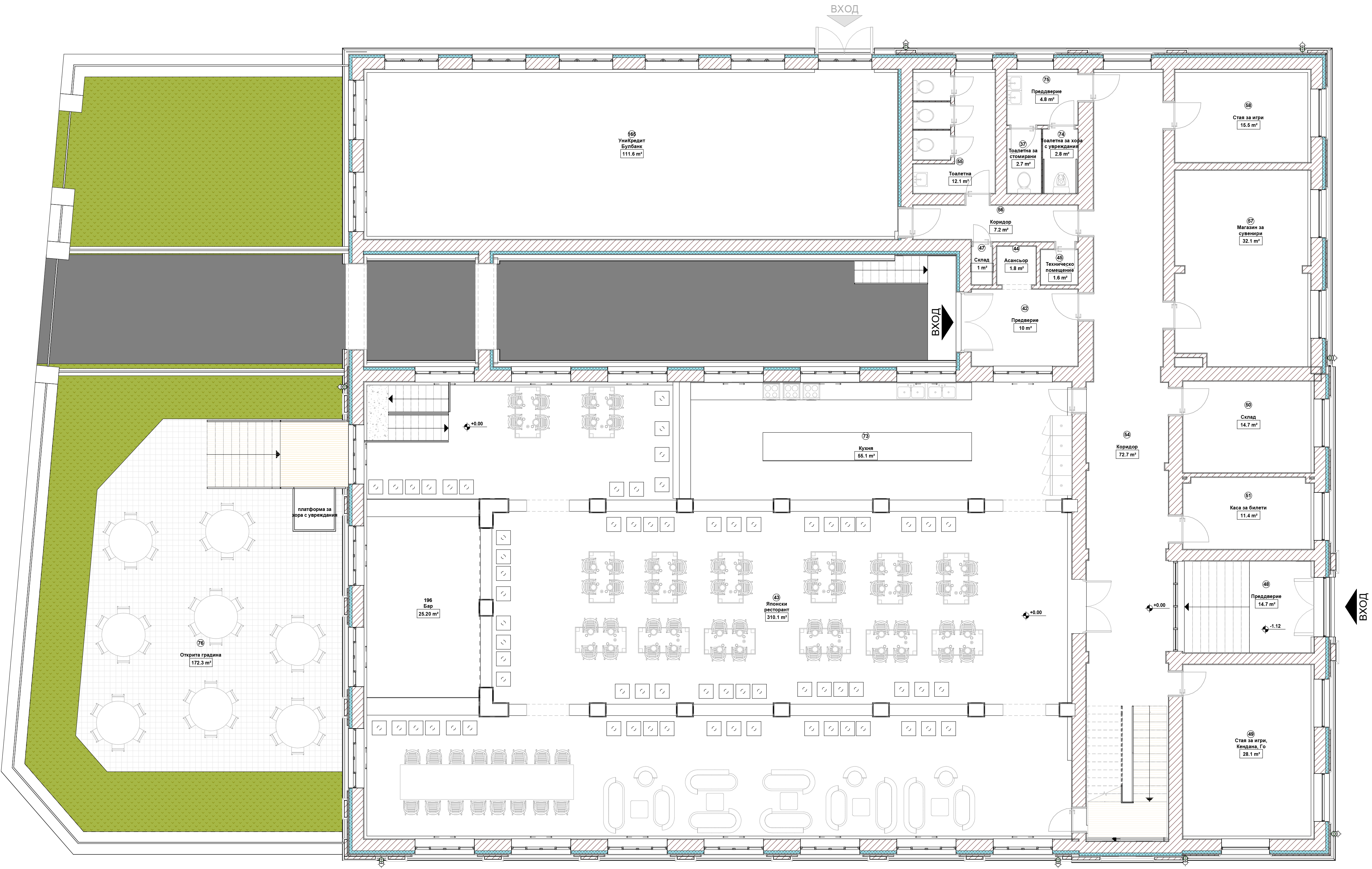
1 ЕТАЖ Кота 0.00 ще е със свободен достъп. На това ниво ще има Японски ресторант с чайна, отворена кухня и лятна градина в задния двор към ул. Петко Каравелов. Капацитета му е около 200 човека. Интериорното пространство е решено без глобални промени по конструктивната част. Ресторанта е подходящ за големи събития, отдаване под наем и може да служи за различни представления. Кухнята е изцяло отворена и ще предлага традиционна Японска храна. Бара е с непосредствен достъп до вътрешната градина и също е отворен.
На нивото имаме още каса за билети, сувенирен магазин, стай за игри, асансьор и тоалетни, тоалетна за инвалиди.
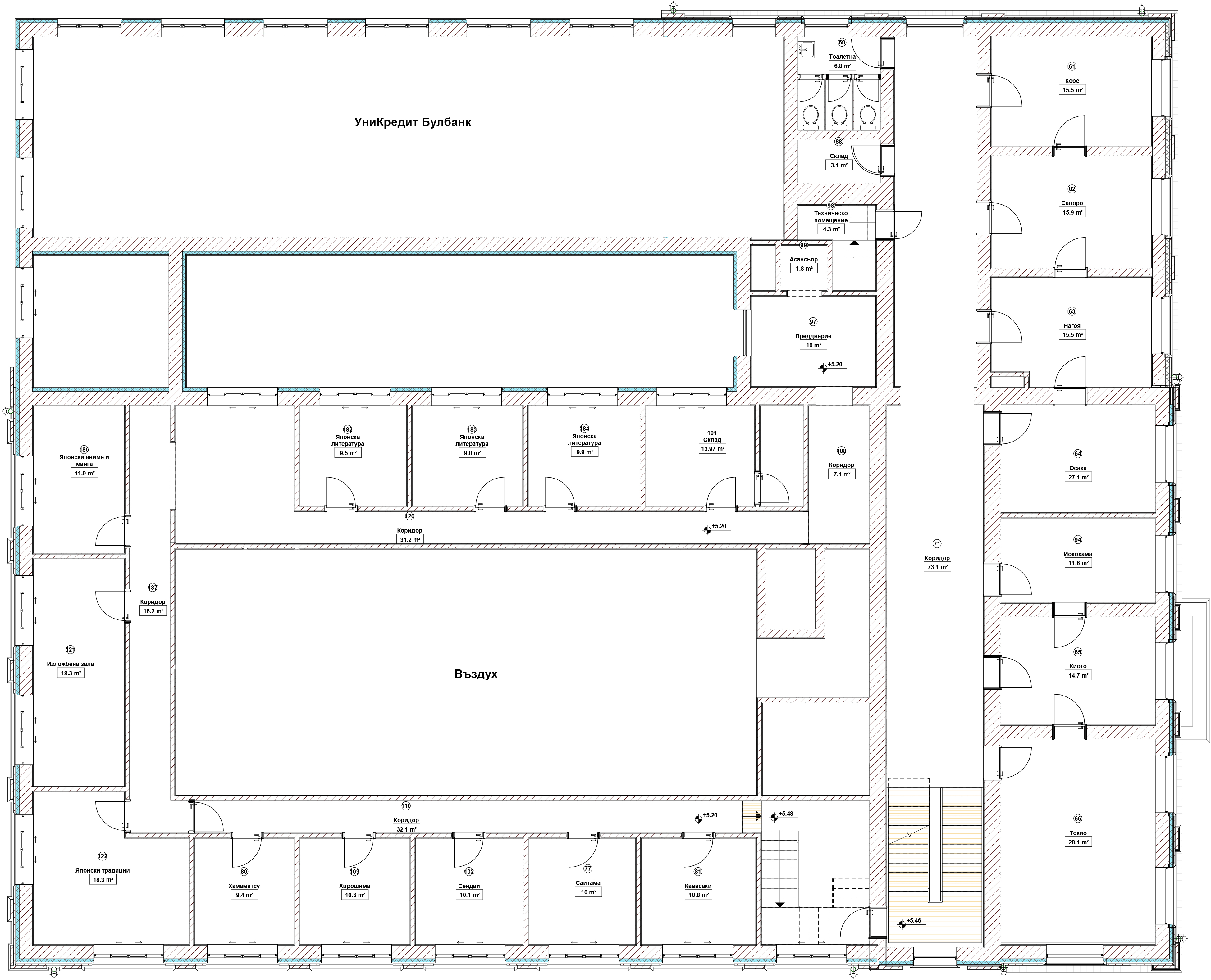
За 2 ЕТАЖ Кота +5.80 сме предвидили виртуален музей на Японските градове и зали за занаяти.
С билета от касата или автомат се предоставя QR код и VR очила. Когато посетителя стигне на второ ниво може да се впусне в добре заснета виртуална реалност с реални кадри от градовете. Решението има много предимства, основното е, че ремонта е минимален – използват се даденостите на сградата. Съчетано с виртуална реалност, която ще привлича много млади хора. Самото “Изживяване” може да бъде интерактивно – като игра и всеки участник да трябва да прави различни избори, които да дават алтернативни сюжети. Етажа е с контролиран достъп от билетна каса.
3 ЕТАЖ К + 7.90 ще съдържа различни занаяти нарекли сме го – С Япония в сърцето!
Ще има зала за събития, конферентна зала, които ще се използват за отдаване под наем за различни събития. На етажа има разположени ателиета за изкуства и занаяти, работилници и складове. Достъпа на етажа е при определени обучения или с билети както е етаж 2.
РАЗГЛЕДАЙТЕ НИВАТА – ЕТАЖ 1, ЕТАЖ 2, ЕТАЖ 3, ПОДЗЕМЕН ЕТАЖ И ПОКРИВ:
Сградата е ситуирана в центъра на град Пловдив. На пространството пред нея сме поставили Тории, който да грабва вниманието и подсказва функцията на сградата. Към площада сме добавил чешма и знамена, съобразили сме се с вече съществуващото озеленяване и не го променяме.
Фасадното решение касае единствено смяна на цветовете, а поради стойността на сградата, като паметник на културата не предвиждаме други саниращи мерки освен реконструкция на всички елементи. Фасадата е еклектична с много различно комбинирани елементи от различни периоди. Изолацията на сградата ще е от вътрешната страна поради тази причина.
Цветовете, които сме заложили са комбинация между бяло и червени нюанси. Преобладава белият цвят – използвали сме го за основа, което ще предаде усещане за мащаб и чистота. Съчетали сме го с нюанси на червеното, което е типичен цвят за Японските сгради и култура. Сградата е със запазен облик отнасящо се за елементи и формообразуване, но сменена гама отговаряща на новата функция.
ИДЕЕН ЕКИП
доц. д-р Атанас Владиков
доцент по Международни икономически отношения /МИО/ в Пловдивски университет „П. Хилендарски”, гр. Пловдив Автор на книгата „Аригато, Токио! Градът, който живее в
XXII-ри век!” (2024 г.), www.atanasvladikov.eu
арх. Деница Чавдарова
архитект – ръководител на архитектурно студио 3D FORMA , https://3dformaarchitecture.com/
главен проектант на Център „Аригато”
Давид Минков
дизайнер в архитектурно студио „3D FORMA”,
шихан Георги Попов
основател и ръководител от 40 години на клуба по карате в
стила шин-киокушин, АСКК „Тракия”, стадион „Христо
Ботев”, гр. Пловдив, https://askktrakia.com
7-ми дан в стила карате шин-киокушин
сенсей Костадин Попов
2-ри дан в стила карате шин-киокушин АСКК „Тракия”, гр.Пловдив, https://askktrakia.com
Елена Филипова
преводач от/на японски език и учител по японски език в
четири училища; основател на клуб по изучаване на
японски език „Ганбаре” в гр. Пловдив
сенсей Здравко Колев
основател и ръководител от 30 години на клуба по айкидо
„Сатори”, гр. Пловдив, най-високата степен в България в
стила айкидо: 6-ти дан
https://www.facebook.com/satoriplovdiv.aikido/?locale=bg_BG
Георги Георгиев
спортист по самбо и джудо; два пъти световен шампион по
самбо (2003 г. и 2006 г.), три пъти шампион на европейски
титли по джудо, бронзов медалист по джудо от олимпиадата
в Атина (2004 г.), многократно отличаван в различни
турнири по джудо и самбо; основател на школата по джудо
„Кодокан” в гр. Пазарджик през 2001 г.
Към момента – Директор на спортното училище в гр.
Пазарджик, https://www.sportnopz.com/
Спас Караджов
бивш спортист по джудо, съсобственик на ресторант за
японска храна „Инари” в гр. Пазарджик,
https://www.inaribg.com/
Атанас Маринчешки – Маестрото
създател на японска суха градина от 1 декар в личната си
къща по всички канони на японската градина
почитател на японската култура и традиции
https://aatanas-marincheshki-art.webnode.page
Микеле Санторели
предприемач и общественик, дарител в множество
кампании със социални цели, създател на фондация за деца
и лица в неравностойно положение: „Творци на надежда”,
https://www.creatorofhope.com/
почитател на японската култура и традиции
Виолета Стайкова
бизнес-дама и активен поддръжник на равностойното и
достойно представяне на жените в икономиката и
обществото, https://steelnex.com/
почитател на японската култура и традиции










