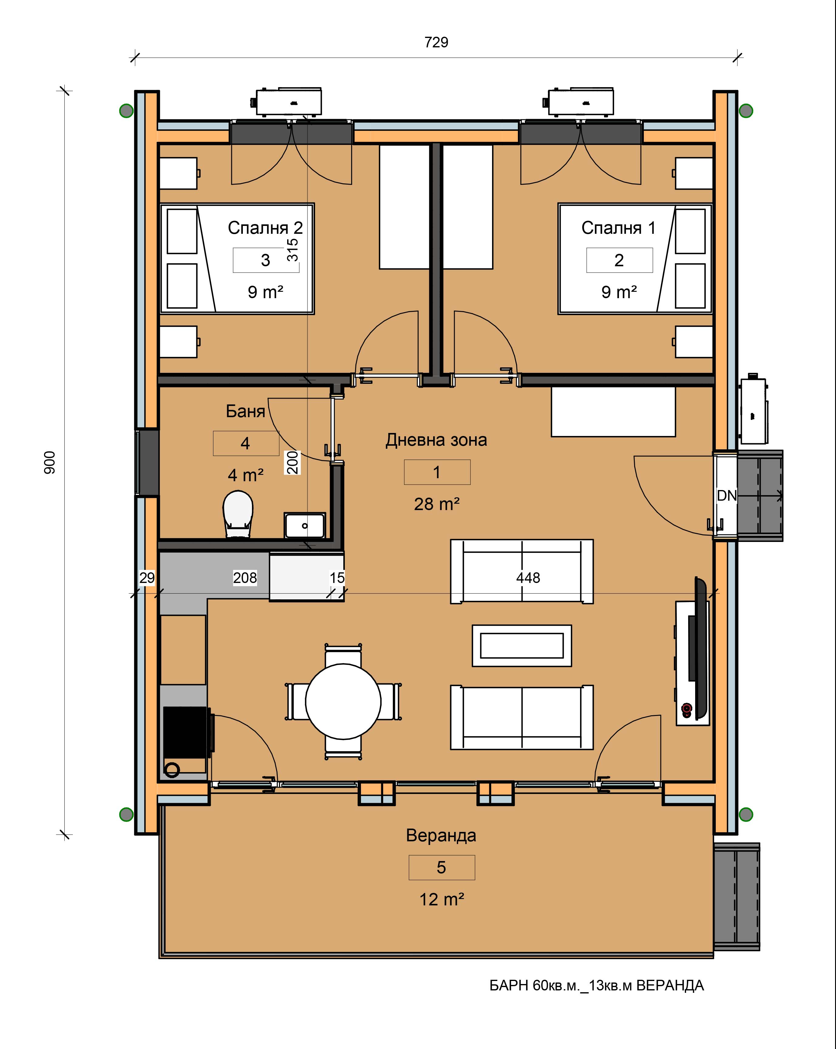
ХАРАКТЕРИСТИКИ
- СТИЛ – Барн
- ВЪНШНИ РАЗМЕРИ – 9/7,29 м.
- РЗП – 60 м2 + 12 м2
- ЕТАЖИ – 1
- СТАИ – 3
- БАНИ – 1
- СПАЛНИ – 2
- ВЕРАНДА – 12 м2
- БАЛКОН/ТЕРАСА – Няма
- ГАРАЖ – Няма
- СТРОИТЕЛНА СИСТЕМА – Дифузно отворена
- ФУНДИРАНЕ – Земни винтове

ИНДИВИДУАЛИЗИРАНЕ
- Промяна фасадна облицовка
- Промяна функция на помещение







