За проекта
ПАРАМЕТРИ
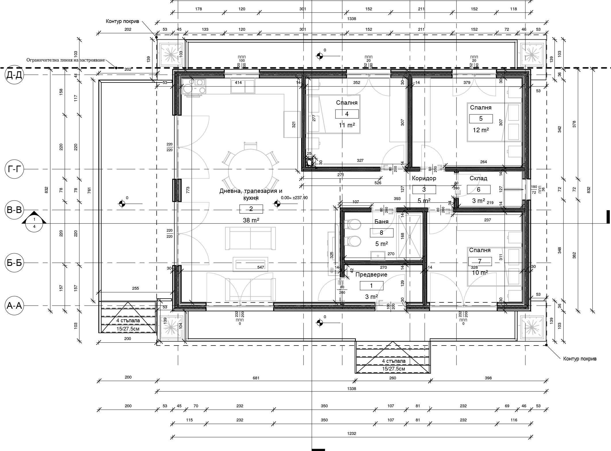
Проекта е 99кв.м. с подпокривно пространство извън тази квадратура. Външни габарите 12.32/8.32м Дневна зона, три спални, предверие, баня, склад и веранди от три страни.
СТРОИТЕЛНА СИСТЕМА
Проекта е разработен за сглобяемо строителство, подходящ е за производство в цех и монтаж на място в рамките на няколко работни дни. Системата е дифузно отворена.
ПОКРИВ
Покрива е двускатен със стрехи покриващи двете веранди от дългите страни. Има подпокривно пространство извън квадратурата на сградата.
СТИЛ
Барн стила е все по – популярен. Формата на сградата е практична и функционално обоснована.
ОСНОВИ И ТЕРЕН
Проекта е с витлови фундаменти. Проекта е лесно приспособяем на равен или наклонен терен, както и труднодостъпните места не са проблем. Екологичност и здравина са огромно предимство за този вид фундиране.
ИНДИВИДУАЛИЗИРАНЕ НА ПРОЕКТА
Можем да предложим проекта в кратки срокове с промени касаещи основата, ако искате бетон. Смяна на фасадни облицовки и промяна на функцията на дадено помещение. Проекта е с голямо подпокривно пространство, което не влиза в РЗПто на сградата – то може да бъде премахнато или да бъде оставено като допълнителна зона.







