ХАРАКТЕРИСТИКИ
- СТИЛ – Барн
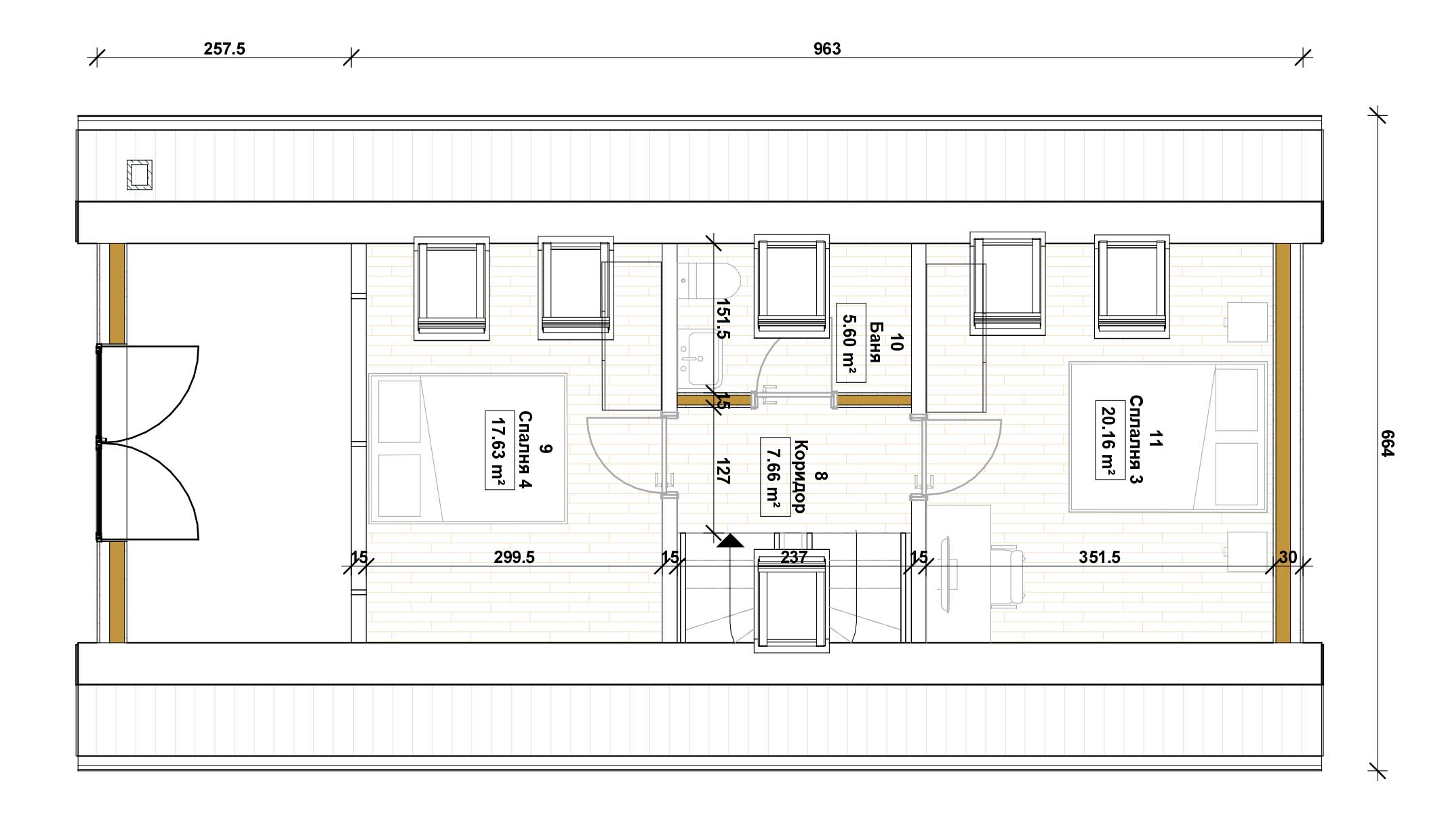
- ВЪНШНИ РАЗМЕРИ – 12,57/6,64 м.
- РЗП – 113,05 м2 + 14,35 м2
- ЕТАЖИ – 2 – 62 м2 и 51,05 м2
- СТАИ – 5
- БАНИ – 2
- СПАЛНИ – 4
- ВЕРАНДА – 14,35 м2
- БАЛКОН/ТЕРАСА – Няма
- ГАРАЖ – Няма
- СТРОИТЕЛНА СИСТЕМА – Дифузно отворена
- ФУНДИРАНЕ – Земни винтове
ИНДИВИДУАЛИЗИРАНЕ
- Промяна фасадна облицовка
- Промяна функция на помещение








