ХАРАКТЕРИСТИКИ
- СТИЛ – Барн
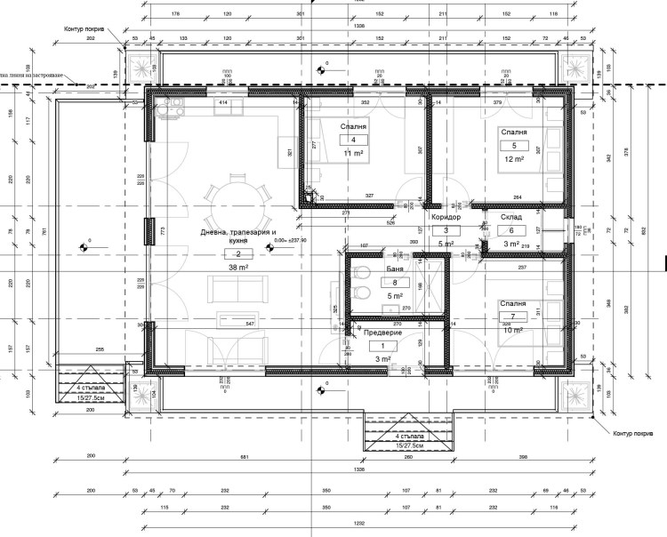
- ВЪНШНИ РАЗМЕРИ – 15/7,70 м.
- РЗП – 92 м2 (+ 20 м2)
- ЕТАЖИ – 1
- СТАИ – 4
- БАНИ – 1
- СПАЛНИ – 3
- ВЕРАНДА – 20 м2
- БАЛКОН/ТЕРАСА – Няма
- ГАРАЖ – Няма
- СТРОИТЕЛНА СИСТЕМА – Дифузно отворена
- ФУНДИРАНЕ – Земни винтове

ИНДИВИДУАЛИЗИРАНЕ
- Промяна фасадна облицовка
- Промяна функция на помещение








