Представяме Ви завършена идейна фаза на инвестиционен проект, който ще се реализира в Годеч, област София.
Ситуацията е решена спрямо даденостите – регулация и голяма денивелация.
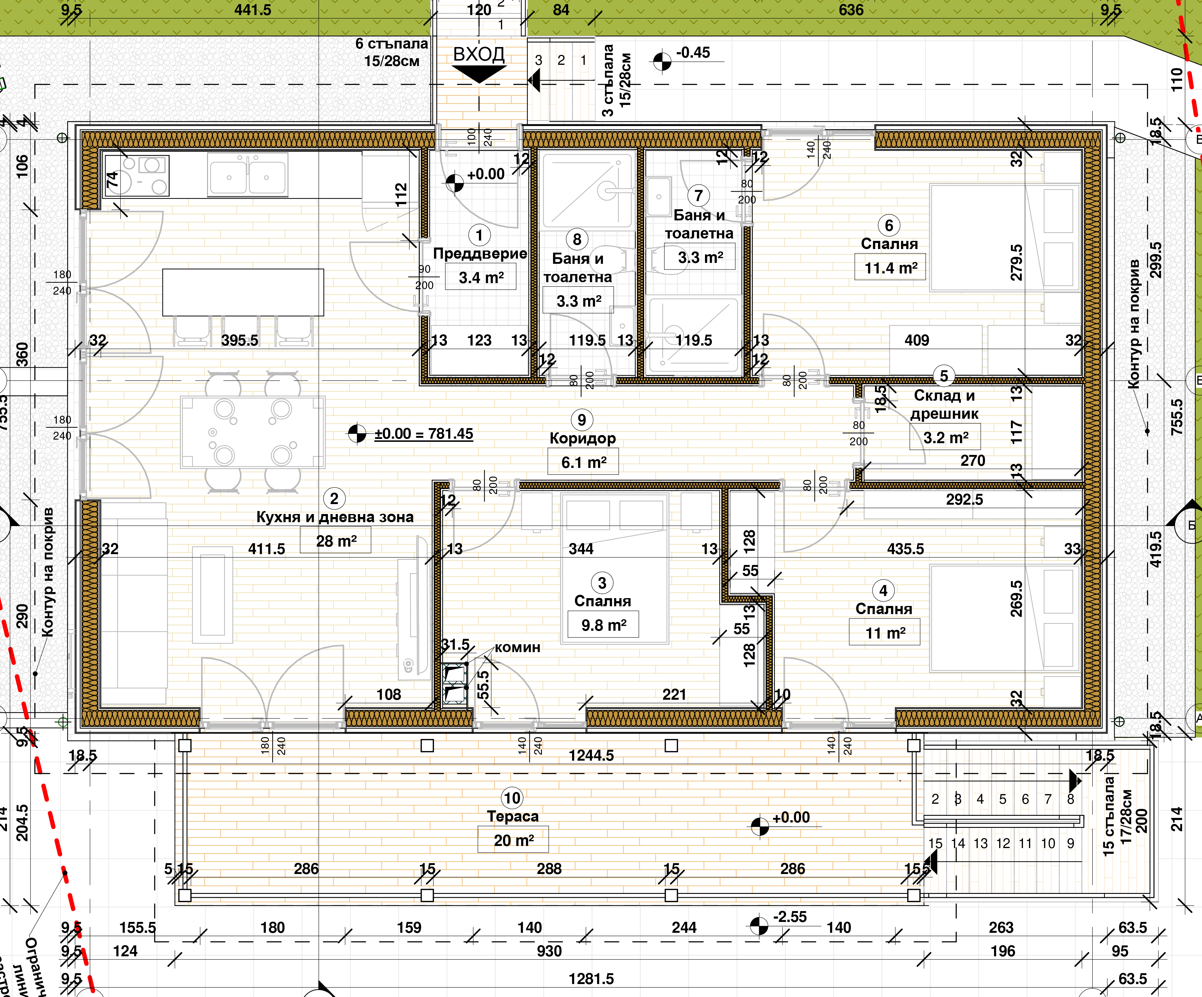
Парцела е с невероятна панорамна гледка, с която проекта е съобразен – има панорамни прозорци разположени към нея.
В имота е заложено паркиране от северната страна.
Къщата е хибридна конструкция на две нива с голяма веранда и тераса към панорамата.
РЗПто и е 177.8кв.м.
Разполага с две дневни зони, четири спални, три бани и склад.
Параметрите на енергоефективен клас са А.
Има възможност за алтернативна соларна система за ток.
Водата е изцяло независима – сондажен кладенец, воден резервоар, а обратната вода е със септична яма.
Подобна къща е подходяща за хора с дигитални/дистанционни професии, или инвестиция за къща за гости, която да се отдава под наем или използвате за семейни почивки.
Приземния етаж е самостоятелен апартамент , може да бъде променена функцията му спрямо потребностите на бъдещите собственици – механа, фитнес, спа или ателие.
Къщата е проектирана по задание на наш клиент – строител, с който имаме реализирани няколко съвместни проекта, ще бъде обявена за продажба.
При интерес се свържете с инвеститора за оферта: Борис Самарджиев Боссауер +359888107995













