ХАРАКТЕРИСТИКИ
- СТИЛ – Стардантен
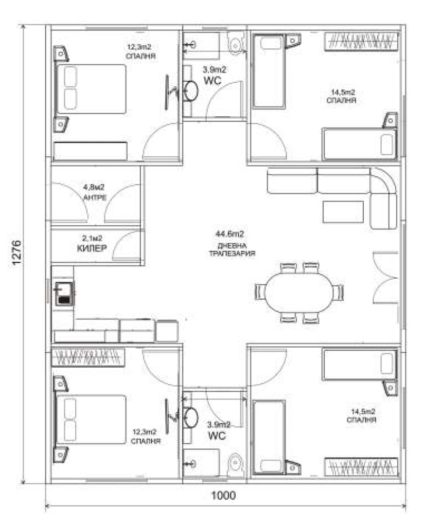
- ВЪНШНИ РАЗМЕРИ – 10/12,76 м.
- РЗП – 127,6 м2
- ЕТАЖИ – 1
- СТАИ – 5
- БАНИ – 2
- СПАЛНИ – 4
- ВЕРАНДА – Няма
- БАЛКОН/ТЕРАСА – Няма
- ГАРАЖ – Няма
- СТРОИТЕЛНА СИСТЕМА – Дифузно отворена
- ФУНДИРАНЕ – Земни винтове

ИНДИВИДУАЛИЗИРАНЕ
- Промяна фасадна облицовка
- Промяна функция на помещение





