ХАРАКТЕРИСТИКИ
- СТИЛ – Стардантен
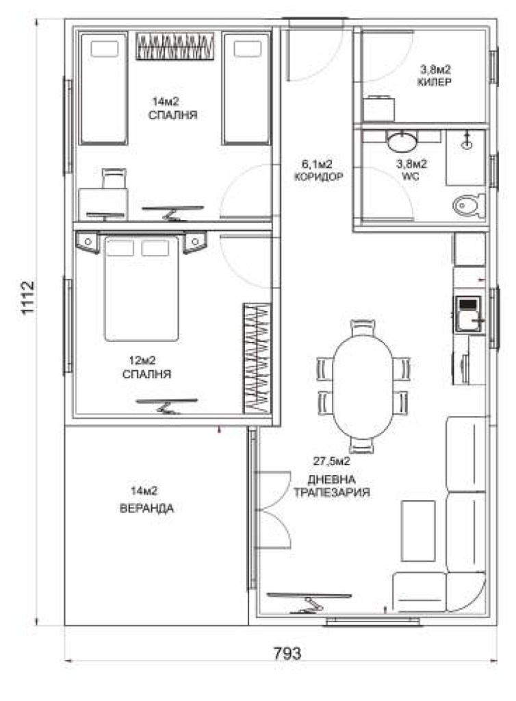
- ВЪНШНИ РАЗМЕРИ – 7,93/11,12 м.
- РЗП – 88,2 м2
- ЕТАЖИ – 1
- СТАИ – 3
- БАНИ – 1
- СПАЛНИ – 2
- ВЕРАНДА – 14 м2
- БАЛКОН/ТЕРАСА – Няма
- ГАРАЖ – Няма
- СТРОИТЕЛНА СИСТЕМА – Дифузно отворена
- ФУНДИРАНЕ – Земни винтове

ИНДИВИДУАЛИЗИРАНЕ
- Промяна фасадна облицовка
- Промяна функция на помещение



