ХАРАКТЕРИСТИКИ
- СТИЛ – Стардантен
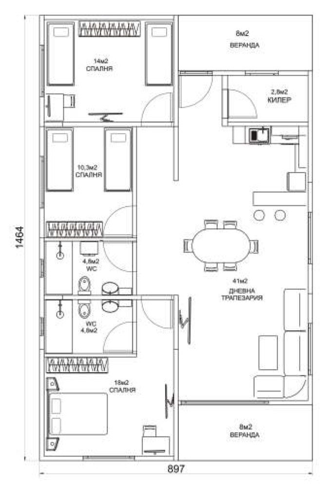
- ВЪНШНИ РАЗМЕРИ – 8,97/14,64 м.
- РЗП – 131,30 м2
- ЕТАЖИ – 1
- СТАИ – 5
- БАНИ – 2
- СПАЛНИ – 3
- ВЕРАНДА – 2 х 8 м2
- БАЛКОН/ТЕРАСА – Няма
- ГАРАЖ – Няма
- СТРОИТЕЛНА СИСТЕМА – Дифузно отворена
- ФУНДИРАНЕ – Земни винтове

ИНДИВИДУАЛИЗИРАНЕ
- Промяна фасадна облицовка
- Промяна функция на помещение



