ХАРАКТЕРИСТИКИ
- СТИЛ – Стандартен
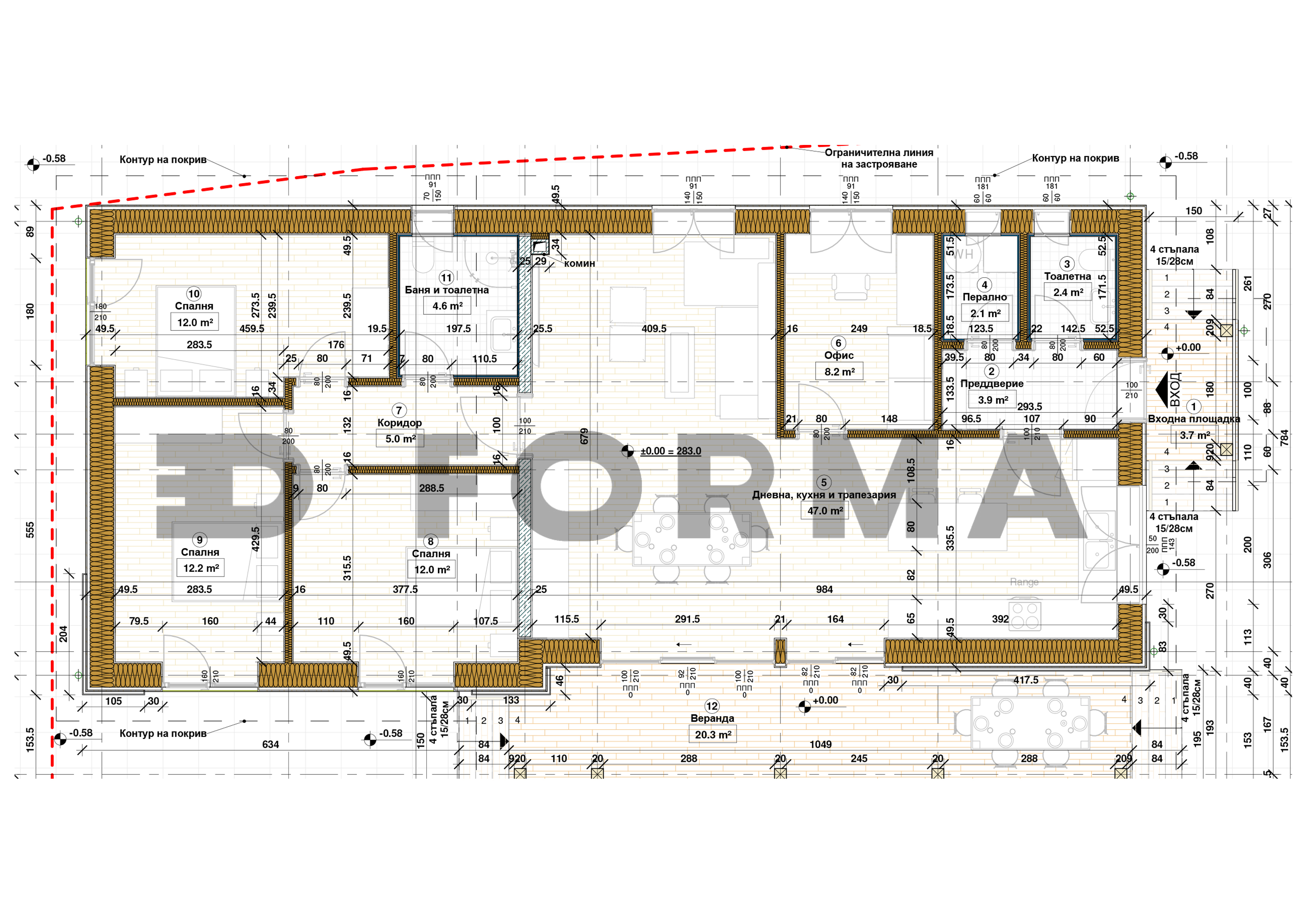
- ВЪНШНИ РАЗМЕРИ – 17,97/7,84 м.
- РЗП – 109,4 м2 + 20,3 м2
- ЕТАЖИ – 1
- СТАИ – 5
- БАНИ – 2
- СПАЛНИ – 3
- ВЕРАНДА – 20,3 м2
- БАЛКОН/ТЕРАСА – Няма
- ГАРАЖ – Няма
- СТРОИТЕЛНА СИСТЕМА – Дифузно отворена
- ФУНДИРАНЕ – Земни винтове

ИНДИВИДУАЛИЗИРАНЕ
- Промяна фасадна облицовка
- Промяна функция на помещение






