ХАРАКТЕРИСТИКИ
- СТИЛ – Стандартен
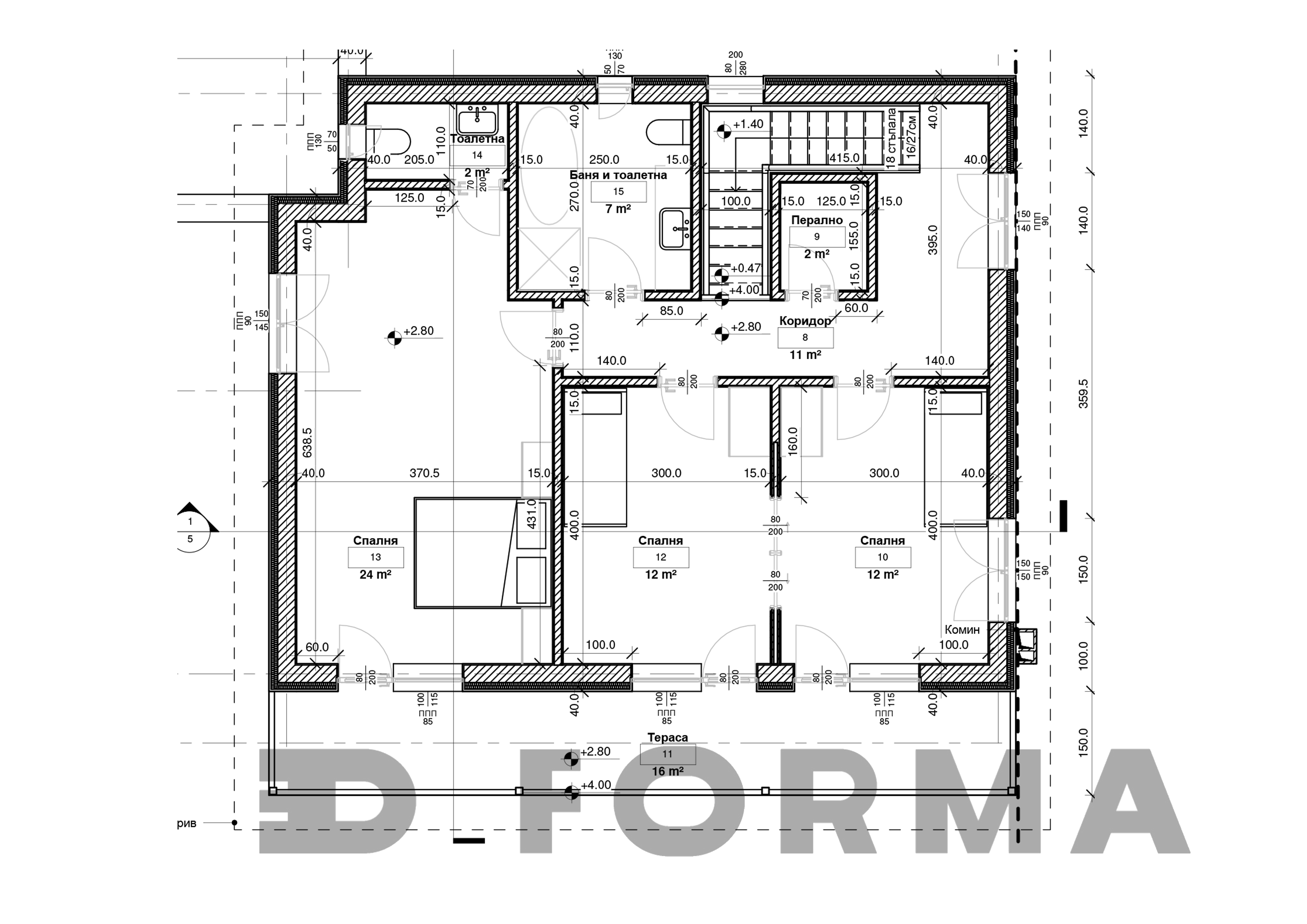
- ВЪНШНИ РАЗМЕРИ – 12,57/7,29 м.
- РЗП – 190 м2 (от които 16 м2 тераса)
- ЕТАЖИ – 2 – (104 м2 и 86 м2)
- СТАИ – 5
- БАНИ – 2
- СПАЛНИ – 3
- ВЕРАНДА – Няма
- БАЛКОН/ТЕРАСА – 16 м2
- ГАРАЖ – 21 м2
- СТРОИТЕЛНА СИСТЕМА – Дифузно отворена
- ФУНДИРАНЕ – Земни винтове
ИНДИВИДУАЛИЗИРАНЕ
- Промяна фасадна облицовка
- Промяна функция на помещение





